Дипломный проект на тему: 12-ти этажный жилой дом с первым не жилым этажом – под строительство в городе Астрахань.
Размеры здания в осях: 24х39,5 м.
1 подъезд
1-комнатных: 24 квартир
2-комнатных: 60 квартиры
Высота типового этажа 3,3 м (от пола до потолка 3,0 м).
Высота первого этажа 3,9 м (от пола до потолка 3,6 м).
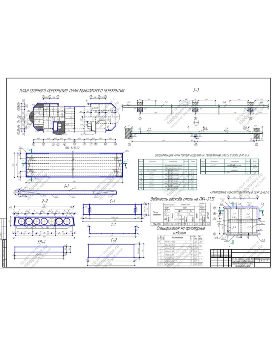
Основным несущим элементом проектируемого здания является монолитный пространственный железобетонный каркас.
В расчётной части были сконструированы и рассчитаны конструкции:
- пространственный монолитный ж/б каркас на действие постоянной, снеговой и ветровой нагрузок;
- монолитные безбалочные перекрытия;
- монолитная колонна;
- фундамент свайный с забивными сваями и буронабивными, произведено их технико-экономическое сравнение;
Графический материал представлен в формате КОМПАС 12
Текстовой материал в формате Word doc.
Содержание архива:
1) Бесплатная часть:
-- демонстрация листов чертежей в сжатом виде, как растровые изображения с водным знаком 1024*724;
-- аннотация и обоснование к проекту из пояснительной записки;
2) Доступ по паролю (пароль содержится в файле получаемом после оплаты):
-- графическая часть 9 листов А1, в формате КОМПАС 12;
-- текстовая часть - пояснительная записка.
Размеры здания в осях: 24х39,5 м.
1 подъезд
1-комнатных: 24 квартир
2-комнатных: 60 квартиры
Высота типового этажа 3,3 м (от пола до потолка 3,0 м).
Высота первого этажа 3,9 м (от пола до потолка 3,6 м).
Основным несущим элементом проектируемого здания является монолитный пространственный железобетонный каркас.
В расчётной части были сконструированы и рассчитаны конструкции:
- пространственный монолитный ж/б каркас на действие постоянной, снеговой и ветровой нагрузок;
- монолитные безбалочные перекрытия;
- монолитная колонна;
- фундамент свайный с забивными сваями и буронабивными, произведено их технико-экономическое сравнение;
Графический материал представлен в формате КОМПАС 12
Текстовой материал в формате Word doc.
Содержание архива:
1) Бесплатная часть:
-- демонстрация листов чертежей в сжатом виде, как растровые изображения с водным знаком 1024*724;
-- аннотация и обоснование к проекту из пояснительной записки;
2) Доступ по паролю (пароль содержится в файле получаемом после оплаты):
-- графическая часть 9 листов А1, в формате КОМПАС 12;
-- текстовая часть - пояснительная записка.
12-ти этажный жилой дом с первым не жилым этажом
- Продавец: antonio_vertu
- Модель: 1446927
- Наличие: Есть в наличии
-
5501р.












