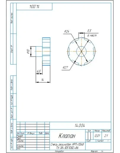
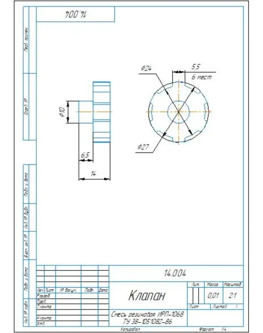
Рабочий чертеж и 3D модель детали клапан 14.004 из сборки 14.000 пневмораспределитель альбома по деталированию Аксарина. Чертеж и модель выполнены в программе Компас 3D
14.004 клапан - чертеж и 3D модель детали
- Продавец: alexey_ktop
- Модель: 5457681
- Наличие: Есть в наличии
-
115р.





