Дипломный проект на тему: 16-ти этажное жилое сейсмостойкое здание – под строительство в городе Анапа.
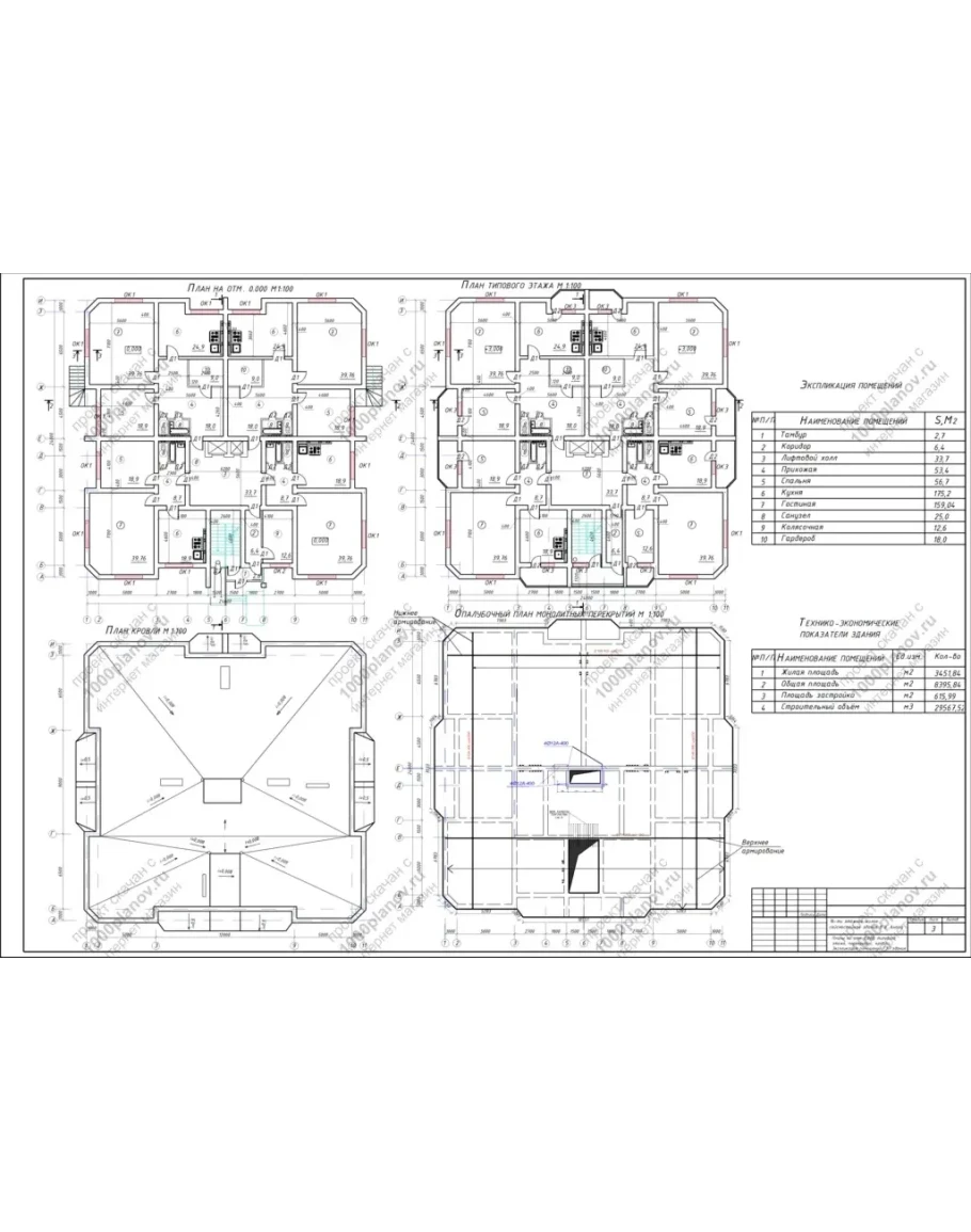
Конструктивный тип и схема здания бескаркасное с продольными и поперечными несущими стенами.
Класс здания II, степень долговечности II, степень огнестойкости II. Планировка квартир разработана в соответствии с нормами проектирования.
Каждая квартира состоит из следующих помещений:
•Кухня
•Гостиная
•Прихожая
•Спальня
•Ванная комната
•Санузлы
В расчётной части сконструированы и рассчитаны конструкции:
- монолитные перекрытия;
- монолитная стена;
- свайный фундамент с монолитным ростверком (при расчёте выполняется сравнение 2-х вариантов свайного фундамента, это фундамент со сборной и буронабивной сваей);
Графический материал представлен в формате КОМПАС 12
Текстовой материал в формате Word doc.
Содержание архива:
1) Бесплатная часть:
-- демонстрация листов чертежей в сжатом виде, как растровые изображения с водным знаком 512*724 … 1024*724;
-- введение и обоснование из пояснительной записки;
2) Доступ по паролю (пароль содержится в файле получаемом после оплаты):
-- графическая часть 9 листов А1, в формате AutoCAD 2007, 1 лист А1, в формате КОМПАС 12;
-- текстовая часть - пояснительная записка.
Конструктивный тип и схема здания бескаркасное с продольными и поперечными несущими стенами.
Класс здания II, степень долговечности II, степень огнестойкости II. Планировка квартир разработана в соответствии с нормами проектирования.
Каждая квартира состоит из следующих помещений:
•Кухня
•Гостиная
•Прихожая
•Спальня
•Ванная комната
•Санузлы
В расчётной части сконструированы и рассчитаны конструкции:
- монолитные перекрытия;
- монолитная стена;
- свайный фундамент с монолитным ростверком (при расчёте выполняется сравнение 2-х вариантов свайного фундамента, это фундамент со сборной и буронабивной сваей);
Графический материал представлен в формате КОМПАС 12
Текстовой материал в формате Word doc.
Содержание архива:
1) Бесплатная часть:
-- демонстрация листов чертежей в сжатом виде, как растровые изображения с водным знаком 512*724 … 1024*724;
-- введение и обоснование из пояснительной записки;
2) Доступ по паролю (пароль содержится в файле получаемом после оплаты):
-- графическая часть 9 листов А1, в формате AutoCAD 2007, 1 лист А1, в формате КОМПАС 12;
-- текстовая часть - пояснительная записка.
16-ти этажное жилое сейсмостойкое здание
- Продавец: antonio_vertu
- Модель: 1474062
- Наличие: Есть в наличии
-
5501р.












