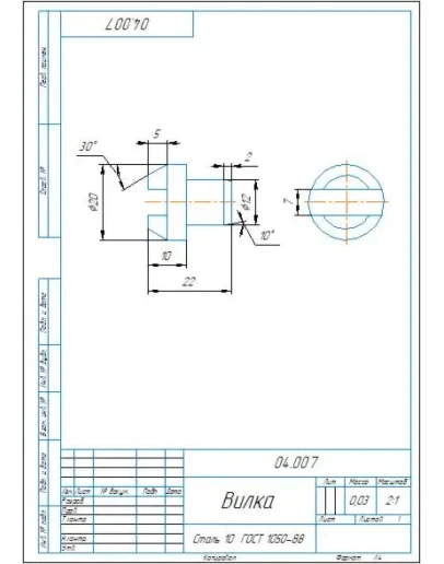
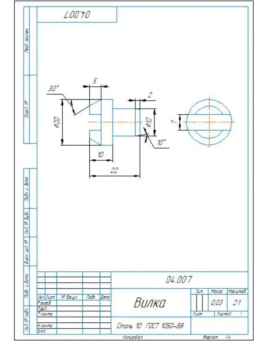
Рабочий чертеж и 3D модель детали вилка 04.007 из сборки 04.000 гидроцилиндр рабочий тормозной из сборника по деталированию Аксарина. Чертеж и модель выполнены в программе Компас 3D
04.007 вилка - чертеж и 3D модель детали
- Продавец: alexey_ktop
- Модель: 5469940
- Наличие: Есть в наличии
-
124р.





