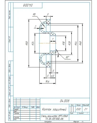
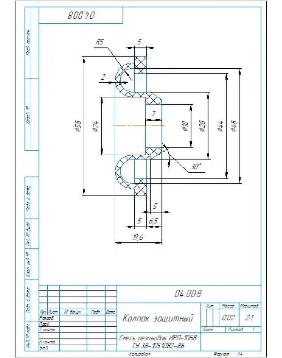
Рабочий чертеж и 3D модель детали колпак защитный 04.008 из сборки 04.000 гидроцилиндр рабочий тормозной из сборника по деталированию Аксарина. Чертеж и модель выполнены в программе Компас 3D
04.008 колпак защитный - чертеж и 3D модель
- Продавец: alexey_ktop
- Модель: 5469950
- Наличие: Есть в наличии
-
121р.





