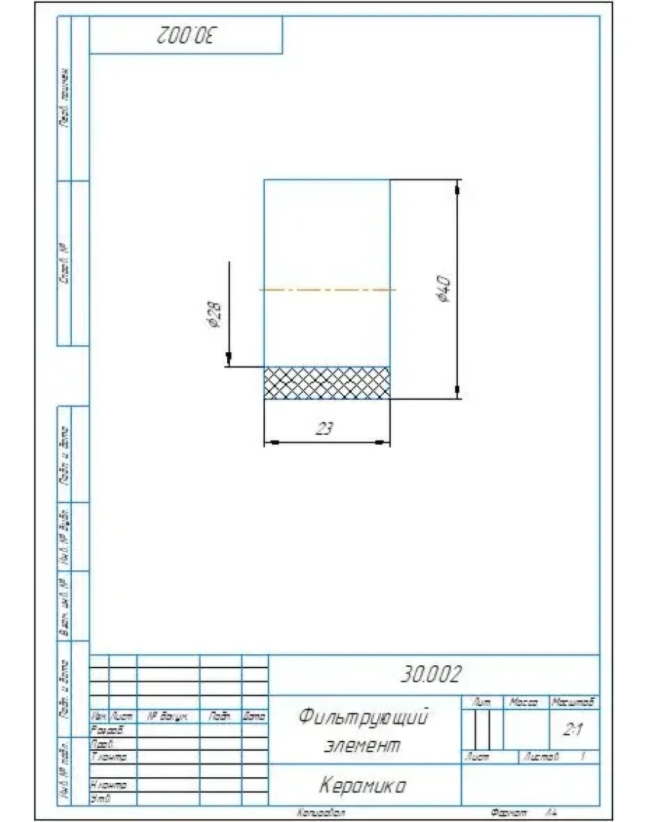
Рабочий чертеж детали 30.002 фильтрующий элемент из сборки 30.000 фильтр-отстойник из сборника по деталированию Аксарина. Чертеж выполнен в Компасе.
30.002 фильтрующий элемент - чертеж детали в компасе
- Продавец: alexey_ktop
- Модель: 5404428
- Наличие: Есть в наличии
-
103р.




