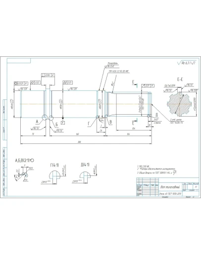
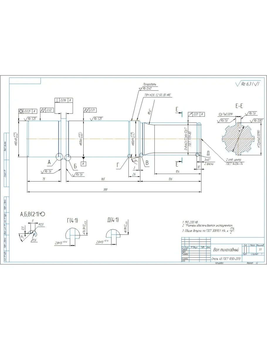
Рабочий чертеж детали вал тихоходный шлицевой с посадочным диаметром под подшипники качения - 80 мм. Чертеж выполнен в компасе
Чертеж детали вал тихоходный шлицевой в компасе d80
- Продавец: alexey_ktop
- Модель: 5347985
- Наличие: Есть в наличии
-
140р.




