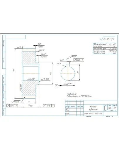
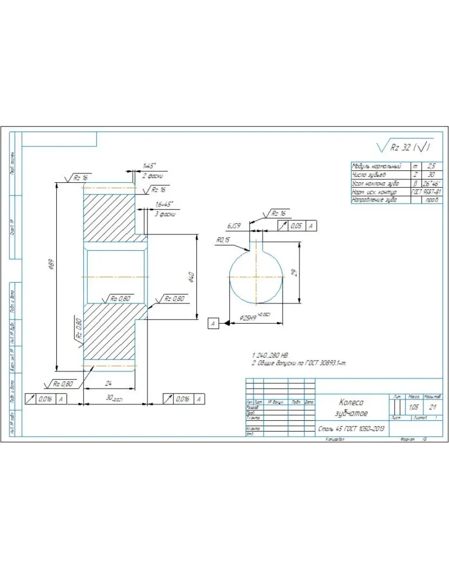
Рабочий чертеж и трехмерная модель детали колесо зубчатое с параметрами: модуль m=2,5 мм, количество зубьев z=30 шт. Чертеж и модель выполнены в компасе.
Чертеж и 3д модель детали колесо зубчатое m2,5 z30
- Продавец: alexey_ktop
- Модель: 5299235
- Наличие: Есть в наличии
-
192р.





