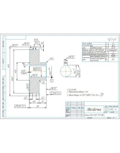
Рабочий чертеж и 3д модель детали звездочка цепной передачи. Звездочка двухрядная, число зубьев z=27 шт., шаг p=31,8 мм. Чертеж и модель выполнены в компасе.
Чертеж и 3D модель детали звездочка цепной передачи
- Продавец: alexey_ktop
- Модель: 5322799
- Наличие: Есть в наличии
-
192р.





