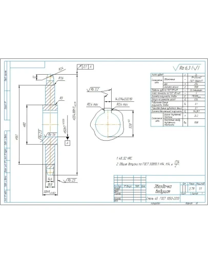
Рабочий чертеж и 3D модель детали звездочка ведущая с параметрами: число зубьев z=24 шт., шаг цепи p=25.4 мм. Чертеж и модель выполнены в Компас 3D
Чертеж и 3D модель детали звездочка ведущая в компасе
- Продавец: alexey_ktop
- Модель: 5347818
- Наличие: Есть в наличии
-
210р.





