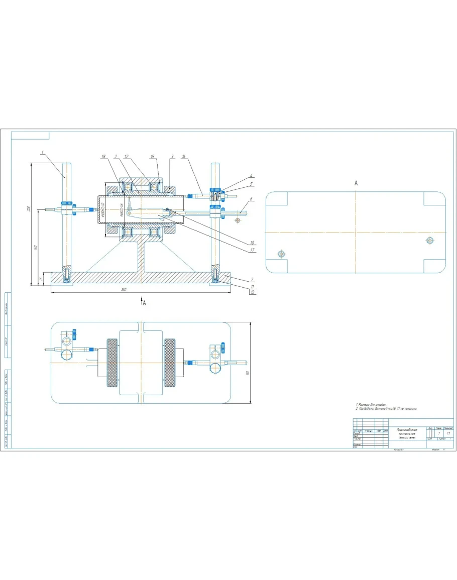
Сборочный чертеж и спецификация для контрольно-измерительного приспособления (КИП) для контроля радиального и торцового биения в детали стакан. Также приложен рабочий чертеж детали стакан. Чертежи и спецификация выполнены в компасе
Чертеж контрольного приспособления (КИП) для биения
- Продавец: alexey_ktop
- Модель: 5291092
- Наличие: Есть в наличии
-
337р.







