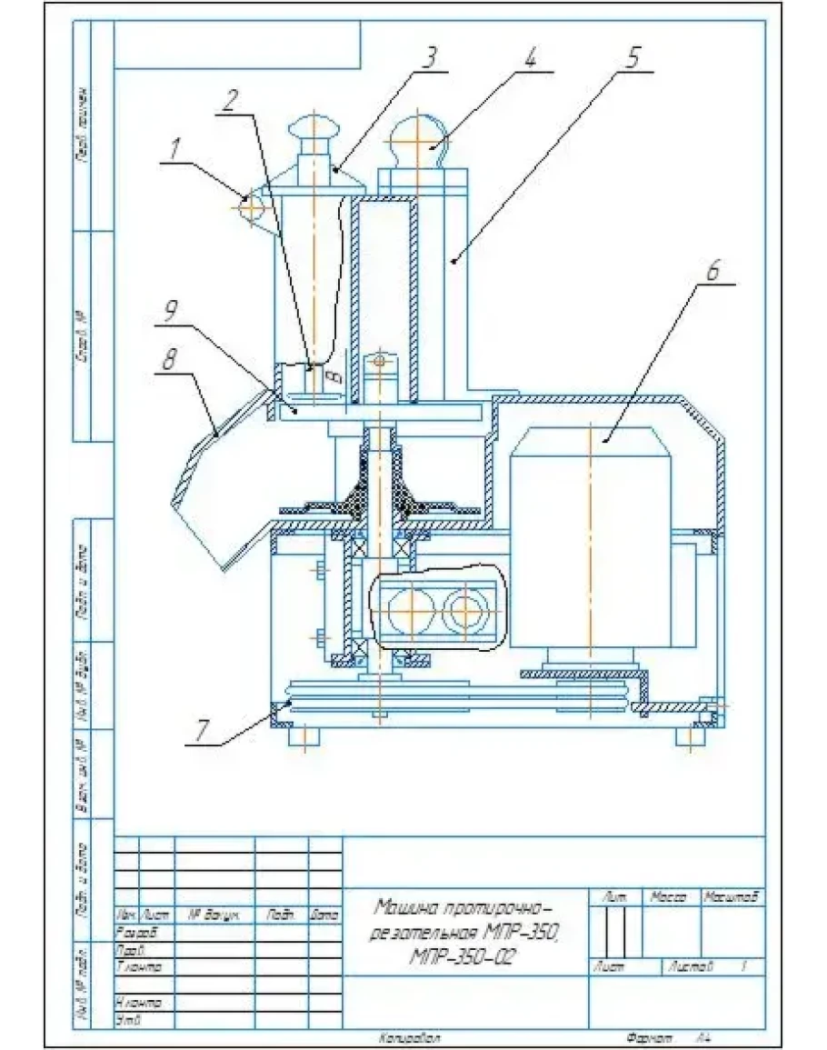
Сборочный чертеж и спецификация машины протирочно-резательной модели МПР-350, МПР-350-02. Чертеж и спецификация выполнены в программе Компас
Чертеж машина протирочно-резательная МПР-350
- Продавец: alexey_ktop
- Модель: 5404536
- Наличие: Есть в наличии
-
201р.





