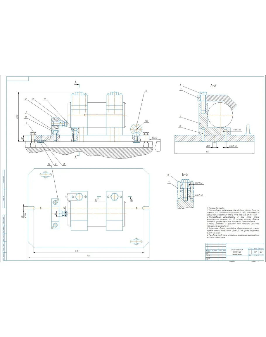
Сборочный чертеж и спецификация фрезерного станочного приспособления для обработки детали "Палец". Также приложен рабочий чертеж детали палец. Чертежи и спецификация выполнены в компасе.
Чертеж приспособления фрезерного для обработки пальца
- Продавец: alexey_ktop
- Модель: 5259911
- Наличие: Есть в наличии
-
337р.







