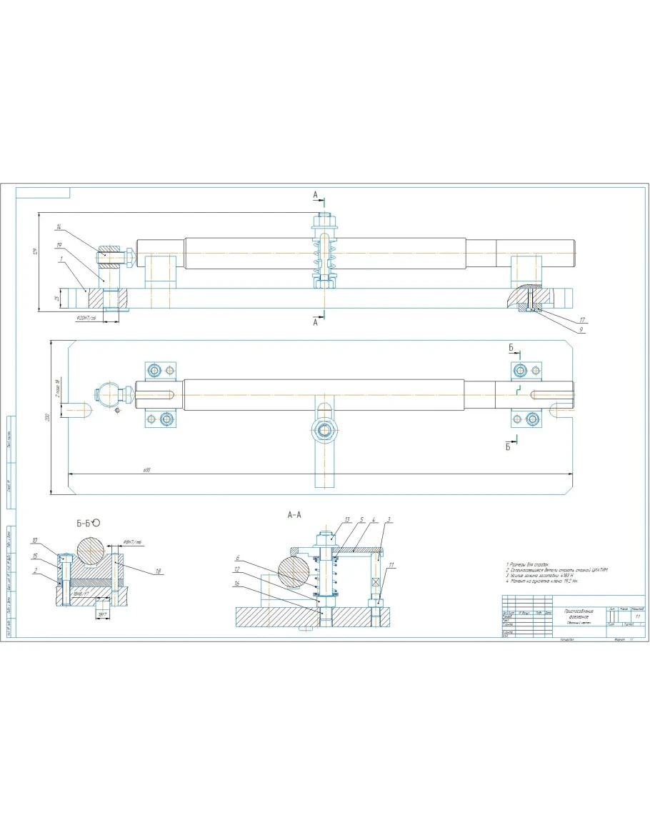
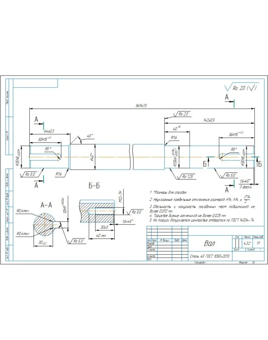
Сборочный чертеж и спецификация приспособления фрезерного для обработки шпоночных пазов на валу. Также приложен рабочий чертеж обрабатываемого вала. Чертежи выполнены в компасе.
Чертеж приспособления фрезерного для обработки вала
- Продавец: alexey_ktop
- Модель: 4643715
- Наличие: Есть в наличии
-
324р.







