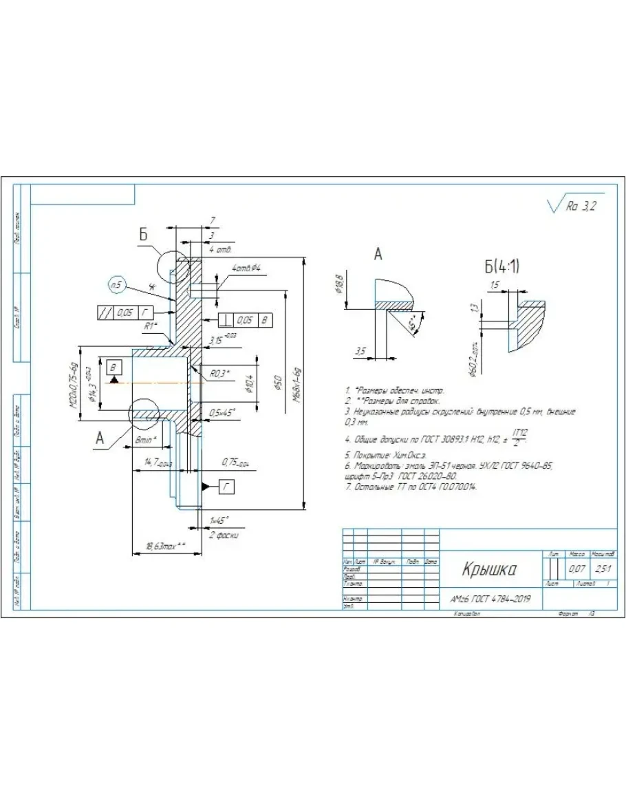
Сборочный чертеж и спецификация сверлильного приспособления с пневматическим приводом и кулачковой оправкой для обработки детали крышка. Также приложен рабочий чертеж детали крышка. Чертежи выполнены в компасе.
Чертеж сверлильного приспособления с пневмоприводом
- Продавец: alexey_ktop
- Модель: 4656171
- Наличие: Есть в наличии
-
547р.







