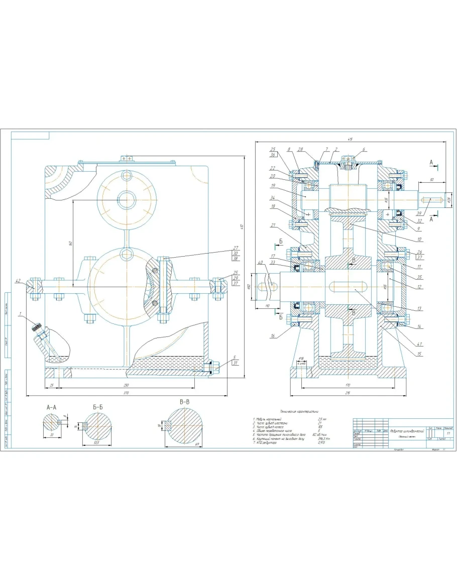
Сборочный чертеж и спецификация редуктора цилиндрического вертикального в программе Компас. Параметры редуктора: модуль m=2,5 мм, межосевое расстояние 160 мм, передаточное число u=5
Чертеж цилиндрический вертикальный редуктор u5 m2,5
- Продавец: alexey_ktop
- Модель: 5343544
- Наличие: Есть в наличии
-
273р.







