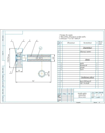
Сборочные чертежи со спецификациями проходной и непроходной калибр-пробки гладкой для контроля отверстий 78H9. Чертежи выполнены в компасе. Также приложен расчет калибр-пробки в ворде.
Чертежи калибр-пробка гладкий 78H9 в программе компас
- Продавец: alexey_ktop
- Модель: 5301611
- Наличие: Есть в наличии
-
266р.






