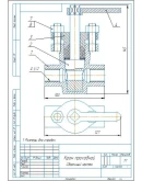
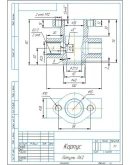
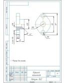
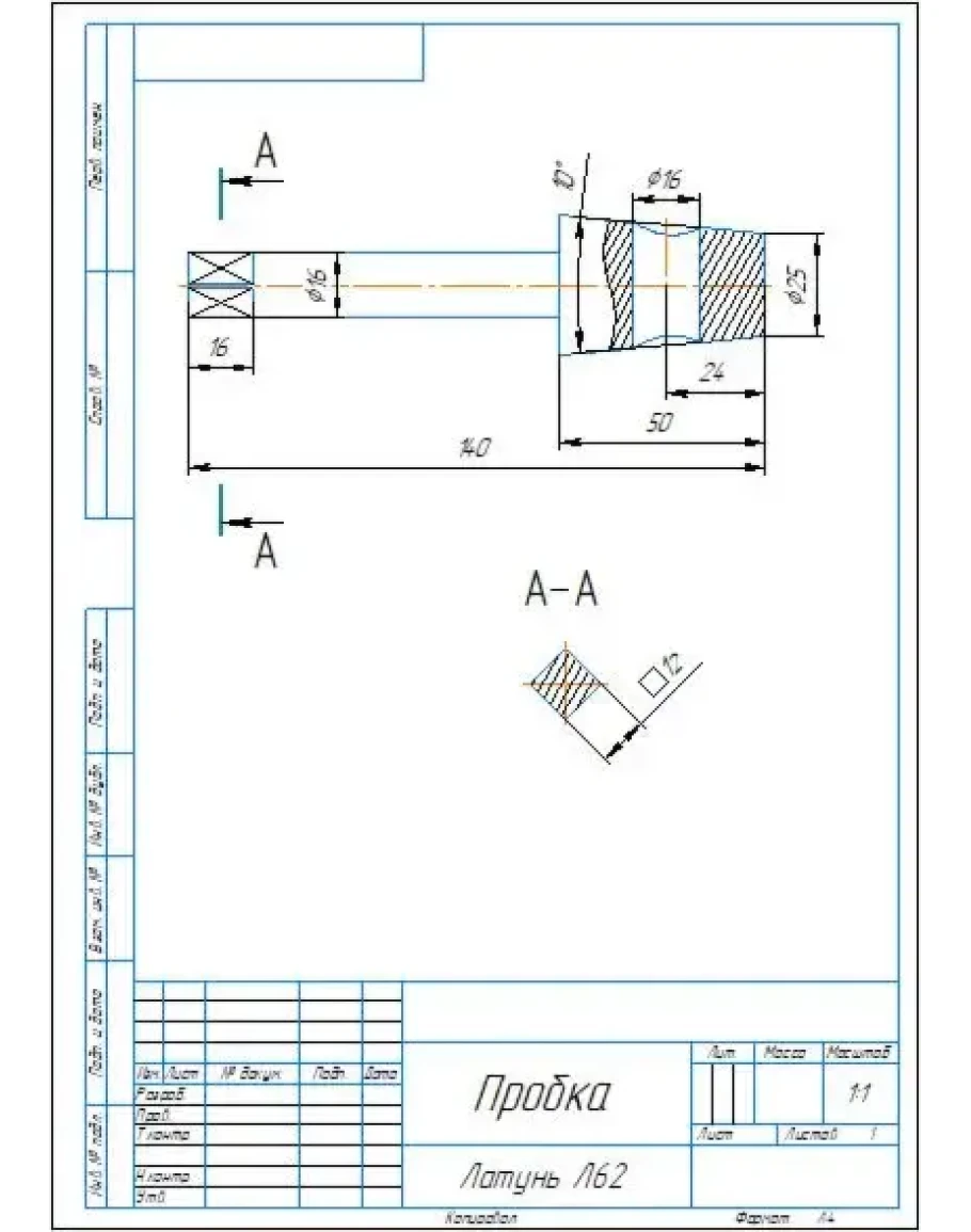
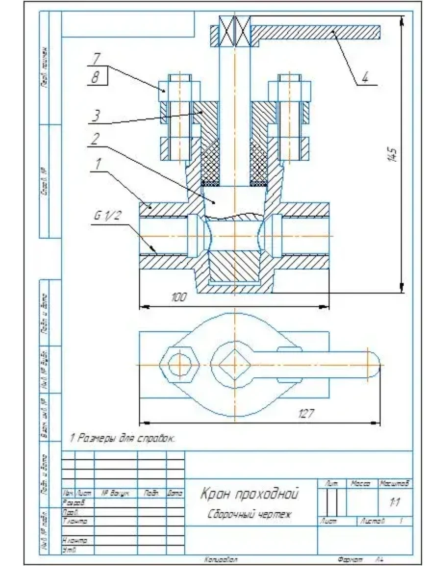
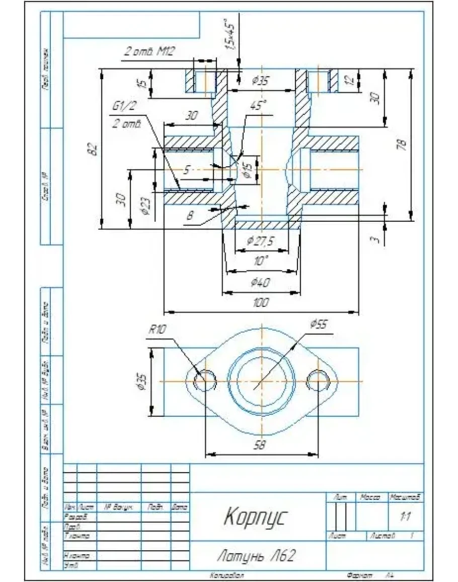
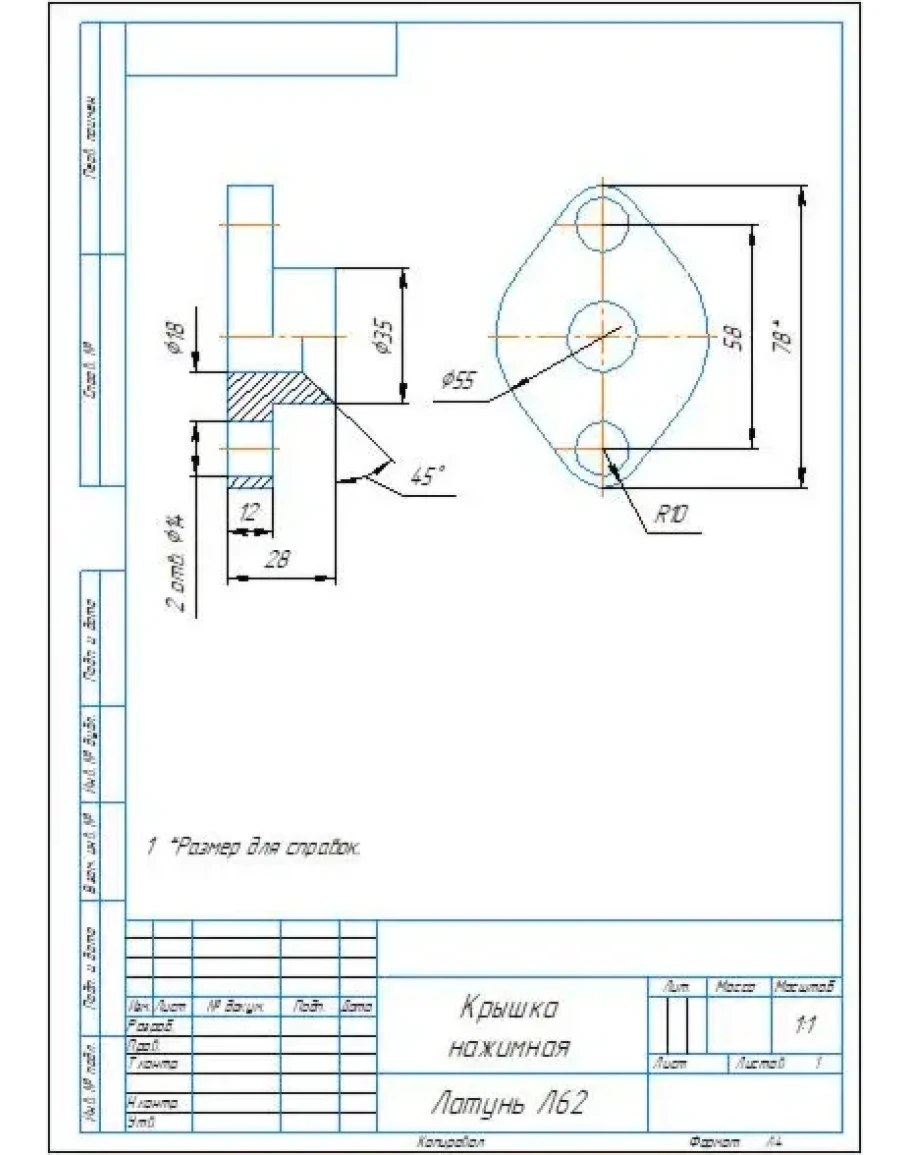
Сборочный чертеж, спецификация сборочного узла кран проходной. Также представлены рабочие чертежи деталей корпус, крышка нажимная, пробка, рукоятка. Чертежи и спецификация выполнены в программе Компас 3D.
Чертежи кран проходной, деталировка
- Продавец: alexey_ktop
- Модель: 5413970
- Наличие: Есть в наличии
-
310р.










