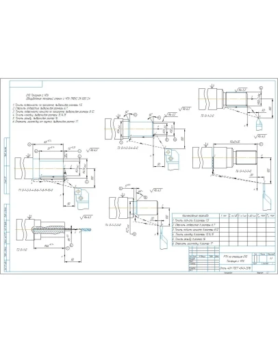
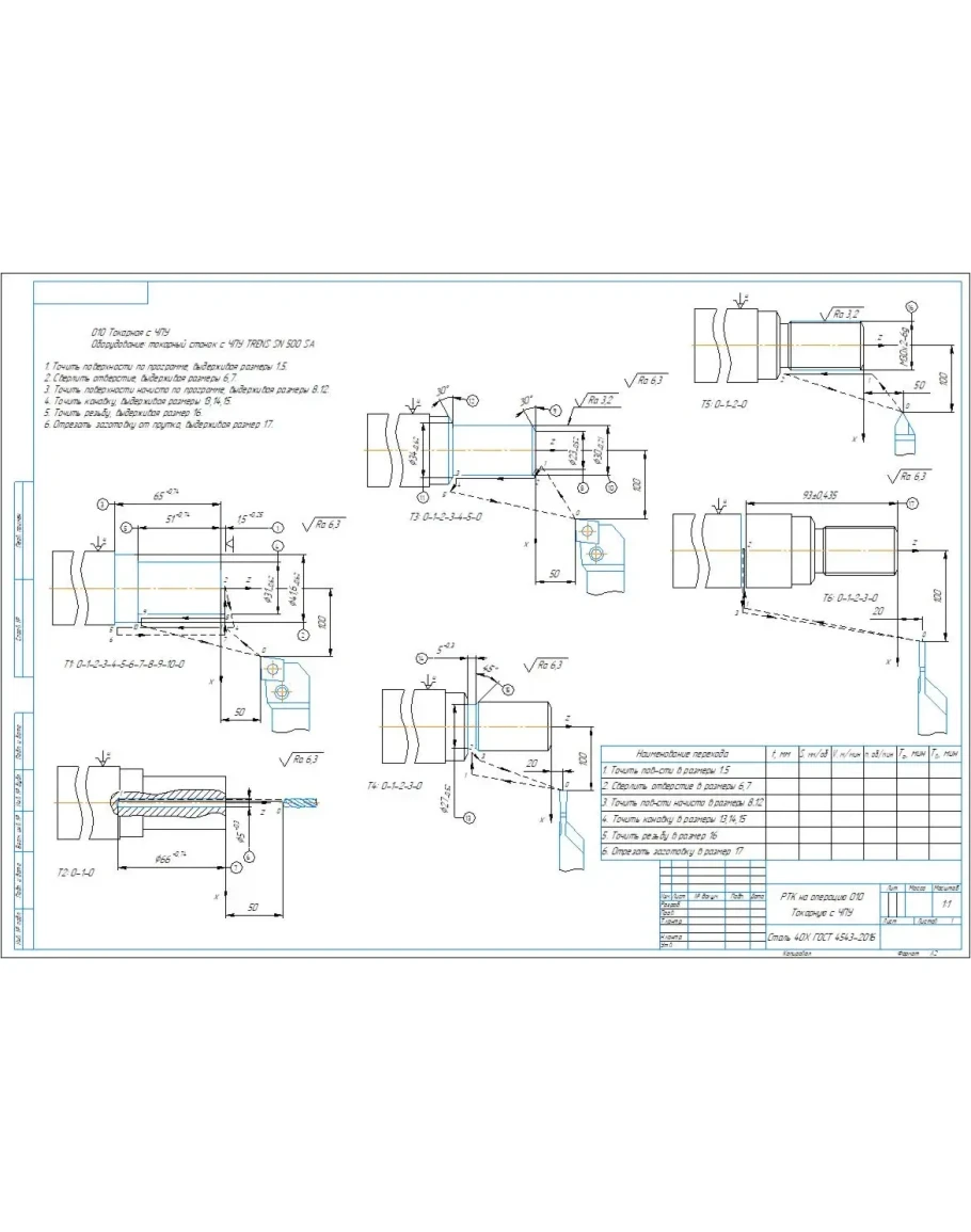
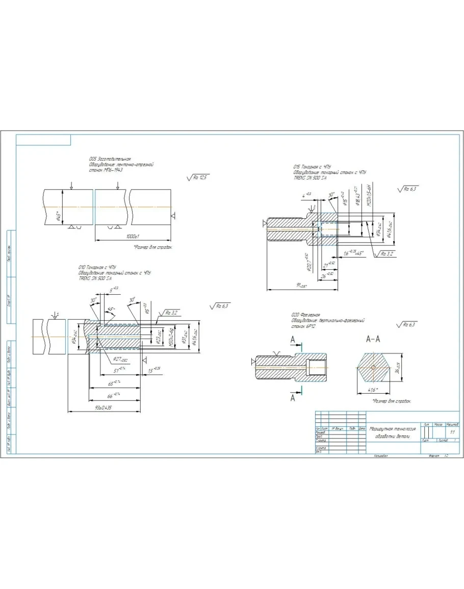
Чертежи маршрутной технологии и расчетно-технологическая карта для детали корпус. Также приложен рабочий чертеж детали корпус. Маршрутная технология и расчетно-технологическая карта выполнены в компасе, а чертеж детали в формате PDF.
Чертежи маршрутная технология и РТК для детали корпус
- Продавец: alexey_ktop
- Модель: 5259913
- Наличие: Есть в наличии
-
319р.






