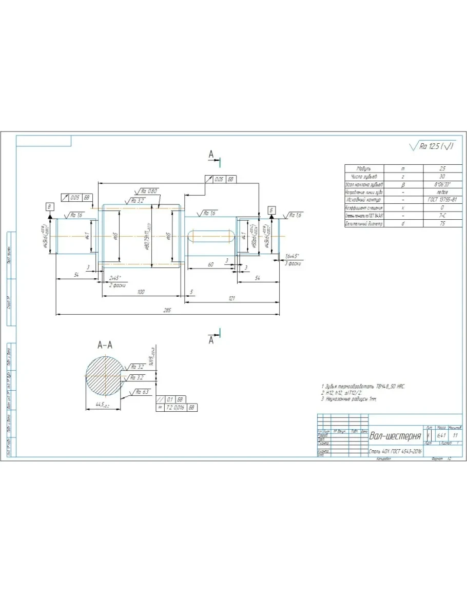
Комплект технологической документации на изготовление детали вал-шестерня в виде технологических карт: маршрутные карты, операционные карты, карты эскизов. Карты выполнены в ворд. Также приложен рабочий чертеж детали вал-шестерня. Чертеж выполнен в компасе

Написать отзыв

Примечание: HTML разметка не поддерживается! Используйте обычный текст.
   Плохо           Хорошо

Карты технологического процесса вал-шестерня

  • Продавец: alexey_ktop
  • Модель: 5311747
  • Наличие: Есть в наличии
  • 393р.

Рекомендуемые