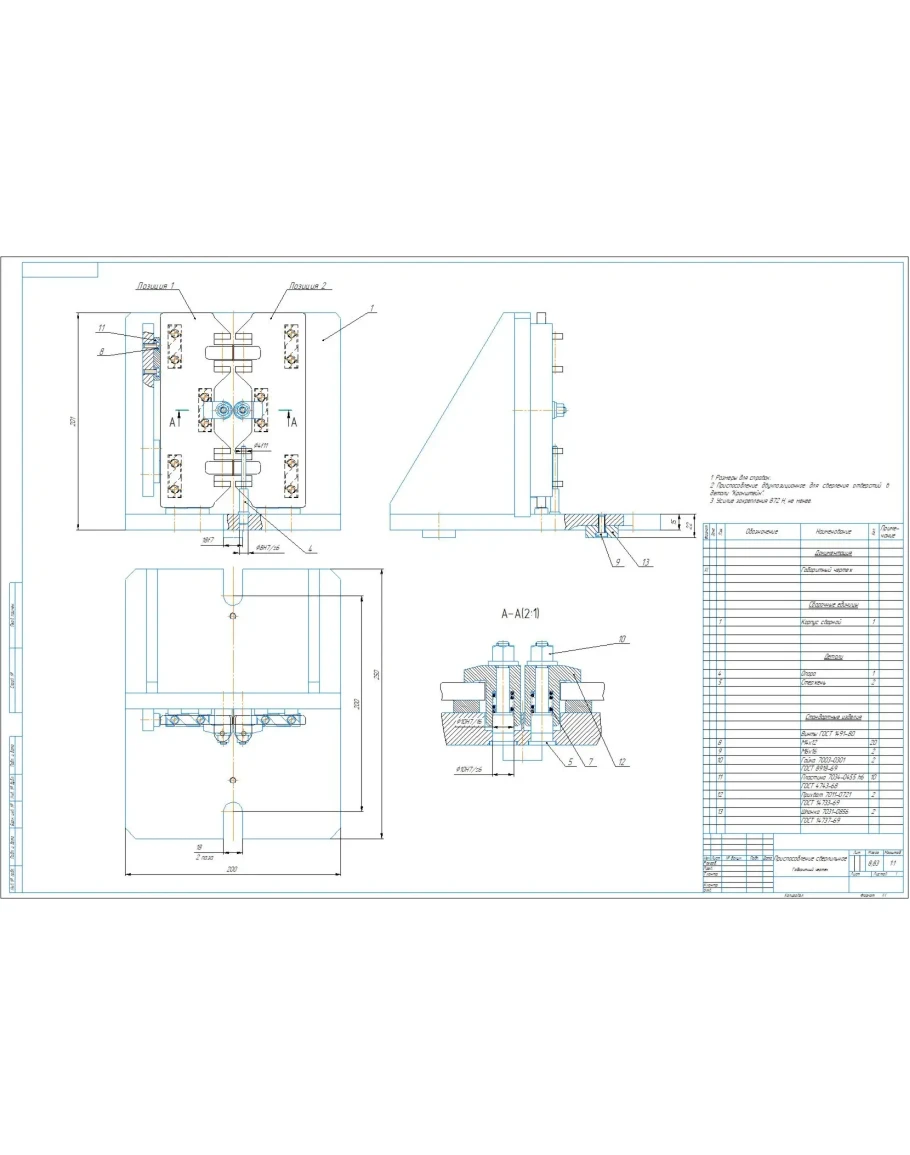
Сборочный чертеж и спецификация приспособления сверлильного специального для обработки отверстий в детали кронштейн. Также приложен рабочий чертеж детали кронштейн. Чертежи выполнены в компасе.
Приспособление сверлильное двуместное в компасе
- Продавец: alexey_ktop
- Модель: 4652671
- Наличие: Есть в наличии
-
328р.





