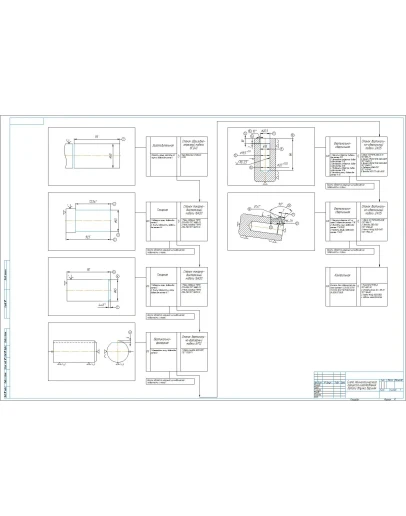
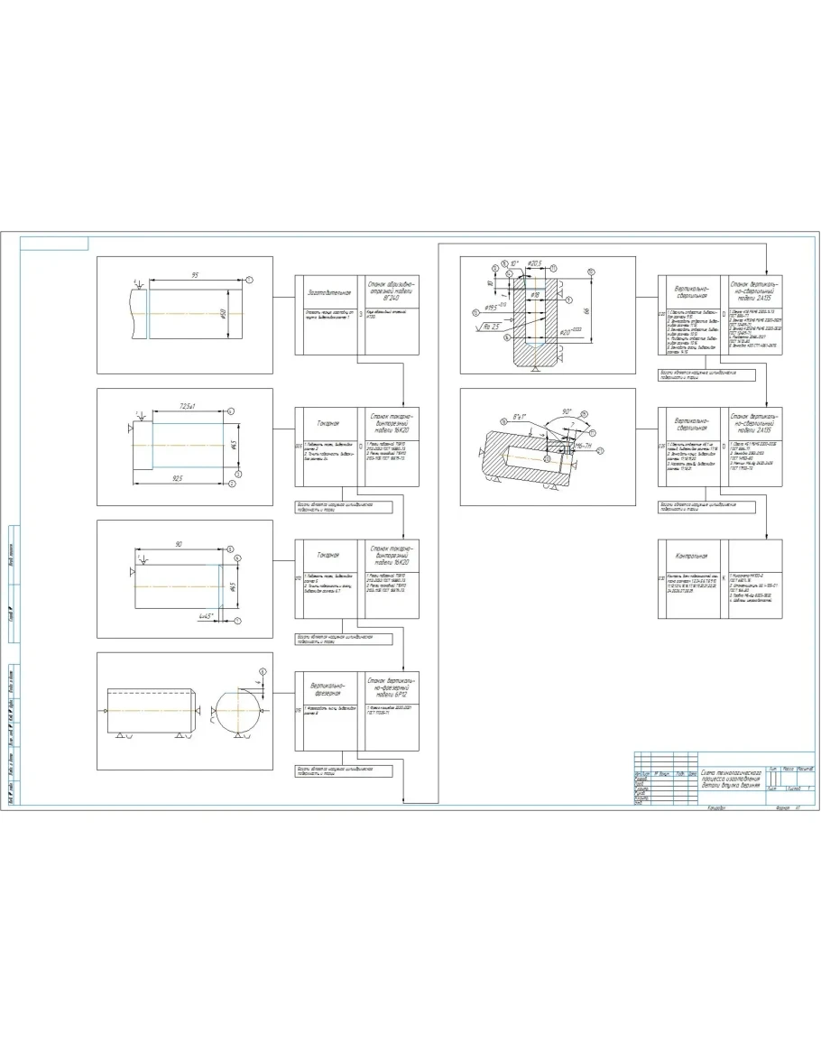
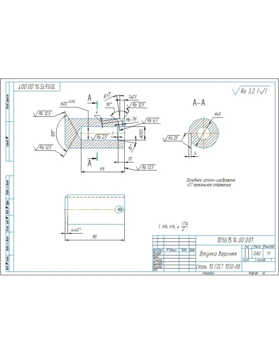
Схема технологического процесса изготовления детали втулка верхняя на формате А1. На схеме указан перечень операций, переходов, оборудование, режущие инструменты, операционные эскизы. Также приложен рабочий чертеж детали втулка верхняя. Чертежи выполнены в компасе.
Схема технологического процесса изготовления втулки
- Продавец: alexey_ktop
- Модель: 4649849
- Наличие: Есть в наличии
-
328р.





