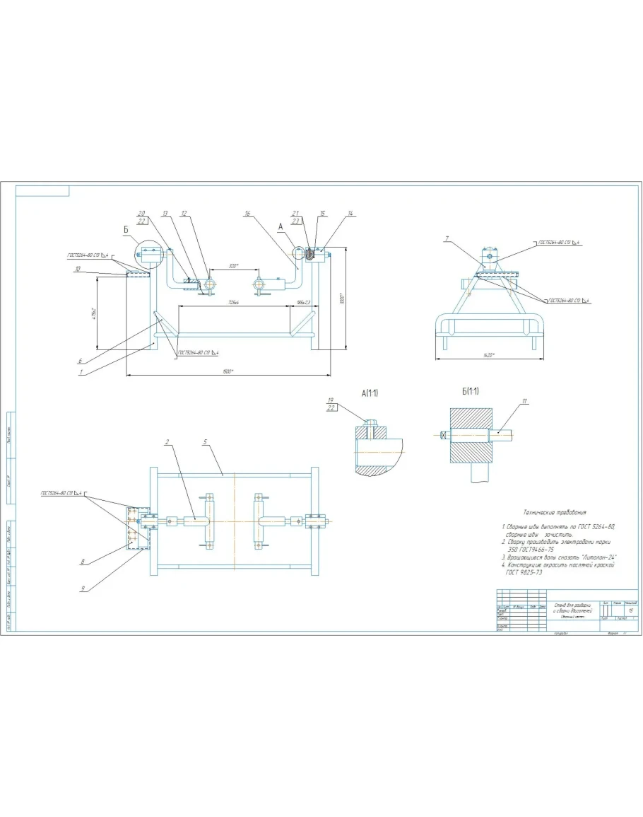
Сборочный чертеж и спецификация, а также некоторые чертежи деталей на стенд для разборки и сборки двигателей. Чертежи выполнены в Компасе
Стенд для разборки и сборки двигателей - чертеж
- Продавец: alexey_ktop
- Модель: 5457574
- Наличие: Есть в наличии
-
266р.







