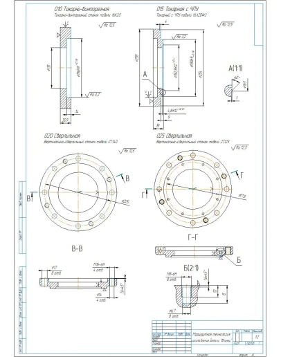
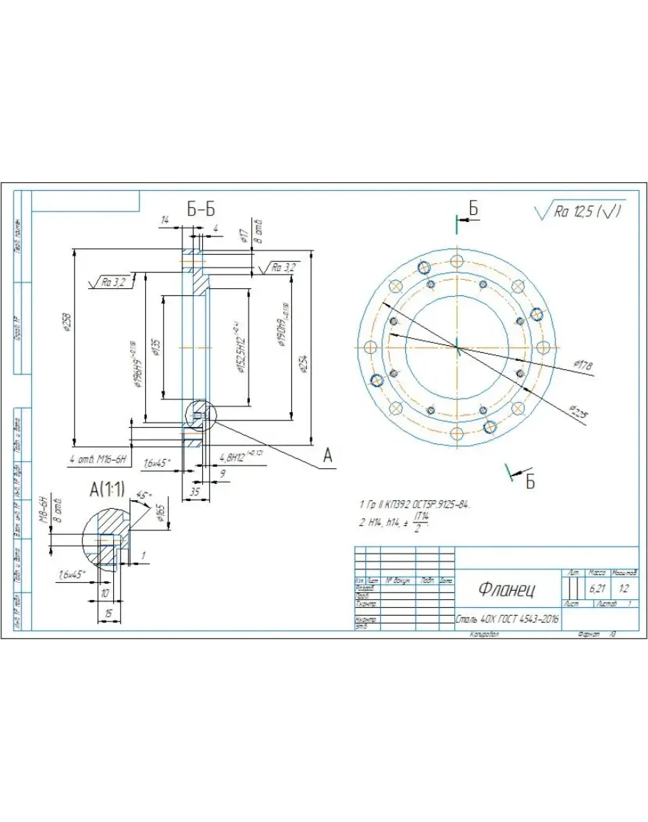
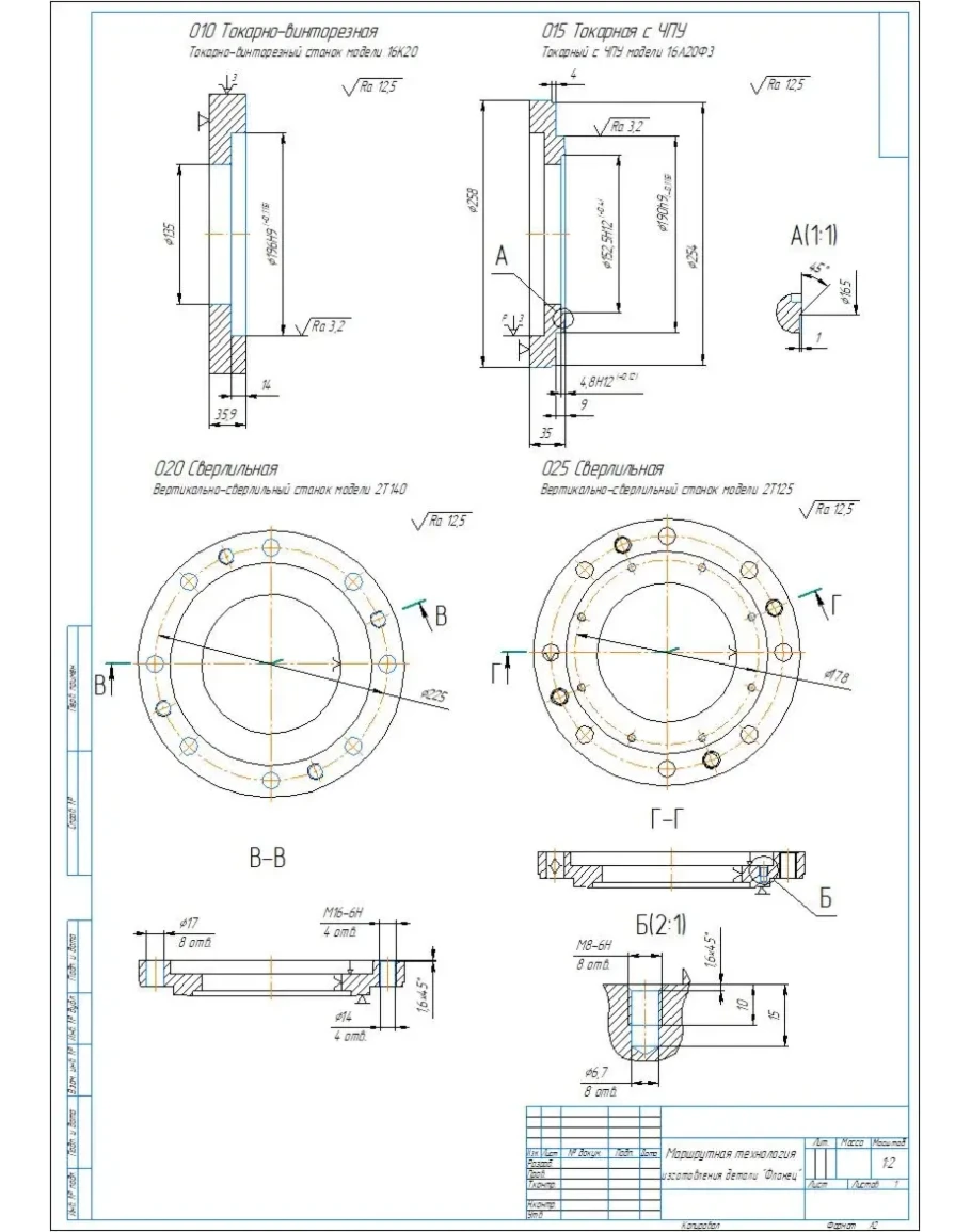
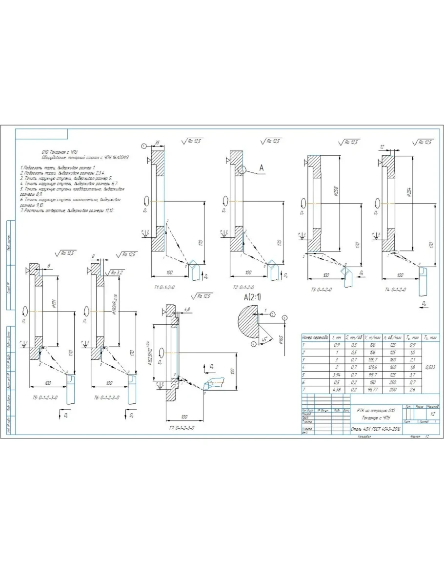
Технологический процесс изготовления детали фланец в виде маршрутной технологии с эскизами операций на формате А1, расчетно-технологическая карта (РТК), операционный эскиз. Также приложены рабочий чертеж детали и чертеж заготовки, 3д-модель детали. Чертежи и модель выполнены в компасе.
Технологический процесс изготовления детали фланец
- Продавец: alexey_ktop
- Модель: 5302045
- Наличие: Есть в наличии
-
372р.









