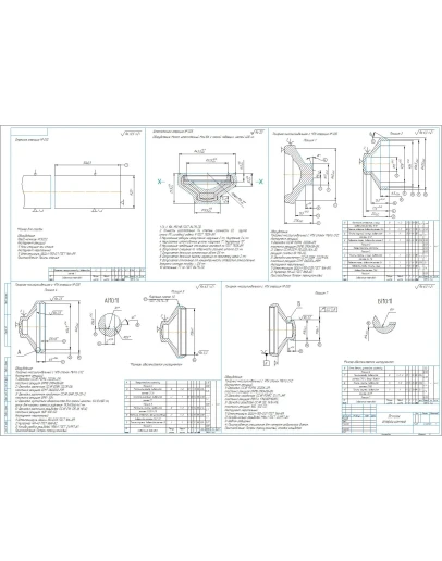
Технологический процесс изготовления детали крышка в виде чертежа формата А1, где указана последовательность операций и переходов, оборудование, инструмент, режимы резания, операционные эскизы. Также приложены рабочий чертеж детали и ее 3д-модель. Чертежи и модель выполнены в компасе.
Технологический процесс изготовления детали крышка
- Продавец: alexey_ktop
- Модель: 5311758
- Наличие: Есть в наличии
-
328р.






