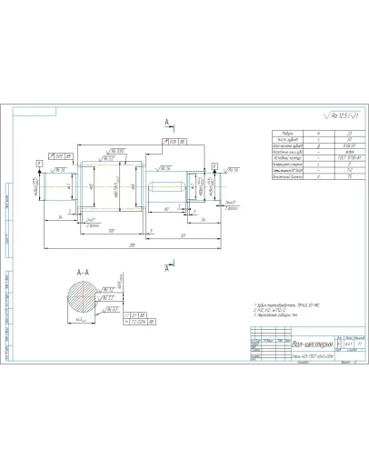
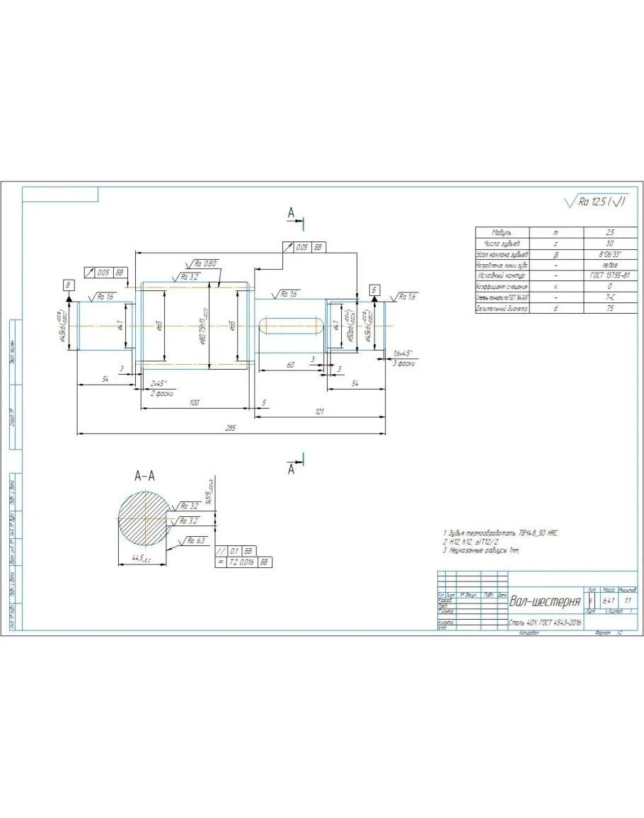
Рабочий чертеж и 3д модель детали вал-шестерня косозубая в программе компас 3D. Параметры зубчатого венца: модуль m=2,5 мм, количество зубьев z=30 шт.
Вал-шестерня косозубая чертеж в компас 3D
- Продавец: alexey_ktop
- Модель: 5311746
- Наличие: Есть в наличии
-
187р.





