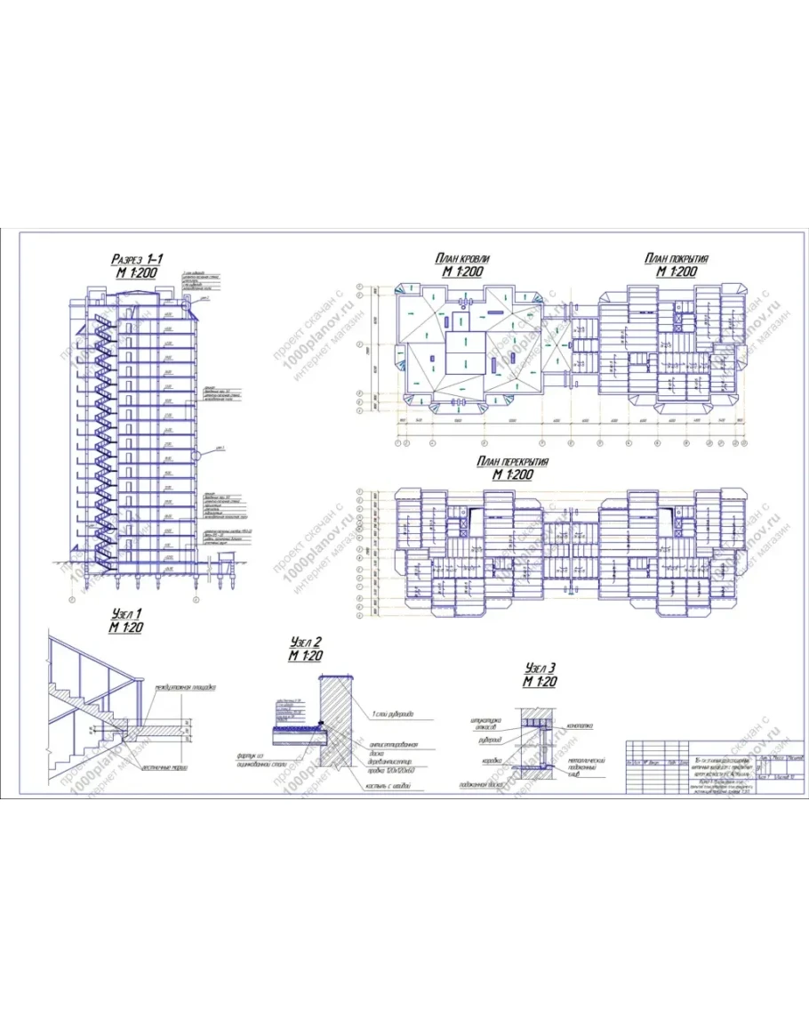
Дипломный проект на тему: 16-ти этажного двухсекционного кирпичного жилого дома с монолитным ядром жёсткости – под строительство в городе Астрахань.
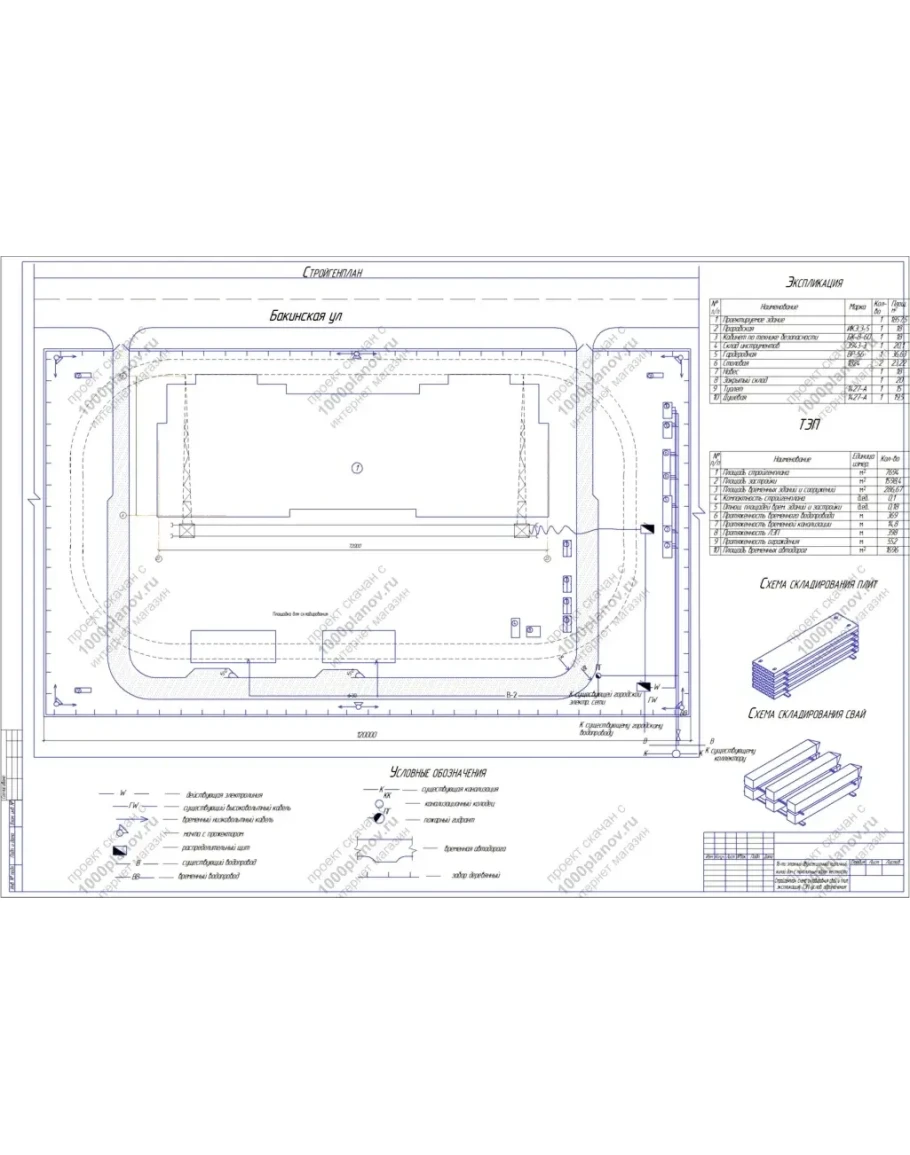
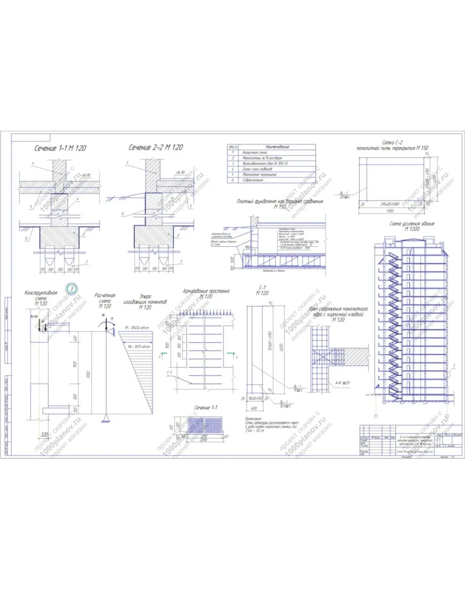
Расчетно-конструктивный раздел содержит расчеты основных несущих конструкций и проектируемого здания, при этом разрабатываются различные варианты конструктивного решения каркаса и отдельных конструкций. При этом определяются основные размеры конструкций, марки материалов, детально разрабатываются решения конструктивных узлов здания.
- Графический материал представлен в формате КОМПАС 12.
- Текстовой материал в формате Word doc.
Содержание архива:
1) Бесплатная часть:
-- демонстрация листов чертежей в сжатом виде, как растровые изображения с водным знаком 512*724 … 1024*724;
-- введение и обоснование из пояснительной записки;
2) Доступ по паролю (пароль содержится в файле получаемом после оплаты):
-- графическая часть 9 листов А1, в формате КОМПАС 2012;
-- текстовая часть - пояснительная записка.
Расчетно-конструктивный раздел содержит расчеты основных несущих конструкций и проектируемого здания, при этом разрабатываются различные варианты конструктивного решения каркаса и отдельных конструкций. При этом определяются основные размеры конструкций, марки материалов, детально разрабатываются решения конструктивных узлов здания.
- Графический материал представлен в формате КОМПАС 12.
- Текстовой материал в формате Word doc.
Содержание архива:
1) Бесплатная часть:
-- демонстрация листов чертежей в сжатом виде, как растровые изображения с водным знаком 512*724 … 1024*724;
-- введение и обоснование из пояснительной записки;
2) Доступ по паролю (пароль содержится в файле получаемом после оплаты):
-- графическая часть 9 листов А1, в формате КОМПАС 2012;
-- текстовая часть - пояснительная записка.
16-ти этажный жилой дома с монолитным ядром жёсткости
- Продавец: antonio_vertu
- Модель: 1474033
- Наличие: Есть в наличии
-
5501р.












