Газификация котельной предприятия. Для курсового и дипломного проектирования.
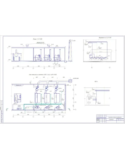
Разрезы котельной и план.
Разрезы котельной и план.
Чертеж газификации котельной предприятия
- Продавец: DSP_seller
- Модель: 1941542
- Наличие: Есть в наличии
-
126р.




