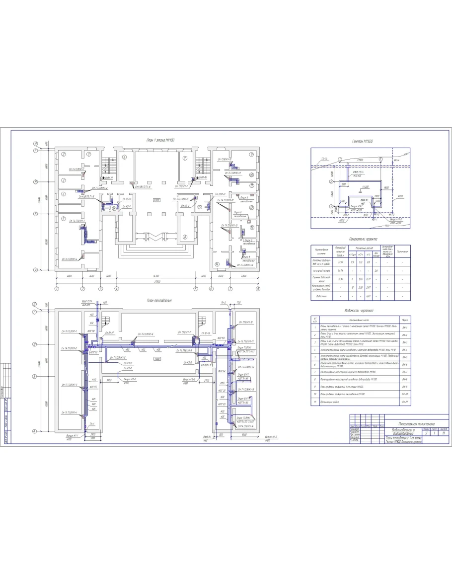
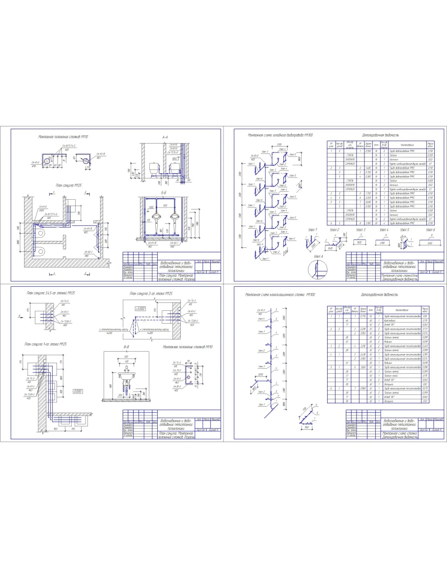
Дипломный проект по водоснабжению и водоотведению пятиэтажной поликлиники. (для техникумов)
Пояснительная записка 109 стр. Расчетные схемы канализации и водопровода. Спецификации оборудования.
9 чертежей формата А1 в компасе V15.1
Пояснительная записка 109 стр. Расчетные схемы канализации и водопровода. Спецификации оборудования.
9 чертежей формата А1 в компасе V15.1
Дипломный проект по водоснабжению и водоотведению
- Продавец: DSP_seller
- Модель: 2015856
- Наличие: Есть в наличии
-
531р.






