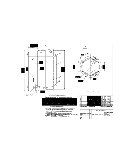
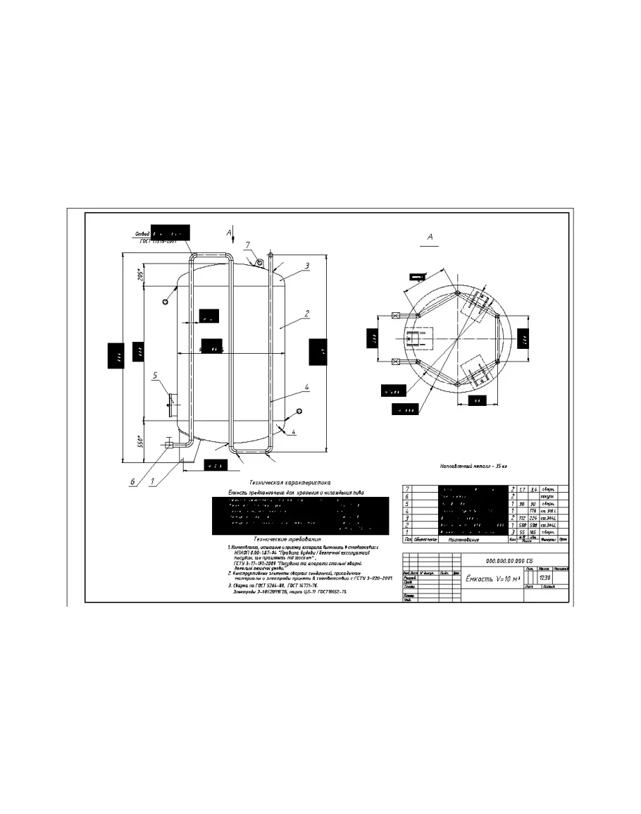
Сборочный чертеж (со спецификацией) емкости для хранения и охлаждения пива V=10 м. куб. Формат А3 (PDF).
Емкость для пива (хранение и охлаждение пива) 10 м.куб.
- Продавец: Павел Долин
- Модель: 1540142
- Наличие: Есть в наличии
-
406р.




