Проектная документация (марки КМ и КЖ).
Основной несущий профиль сварные двутавры с гофрированной стенкой, производитель - ООО"Фирма МетаКом".
Жесткость каркаса обеспечивается жестким сопряжением колонн с фундаментами; жестким сопряжением балок покрытия с колоннами;
системой вертикальных связей и распорок по колоннам, а так же системой связей по балкам покрытия и прогонам покрытия.
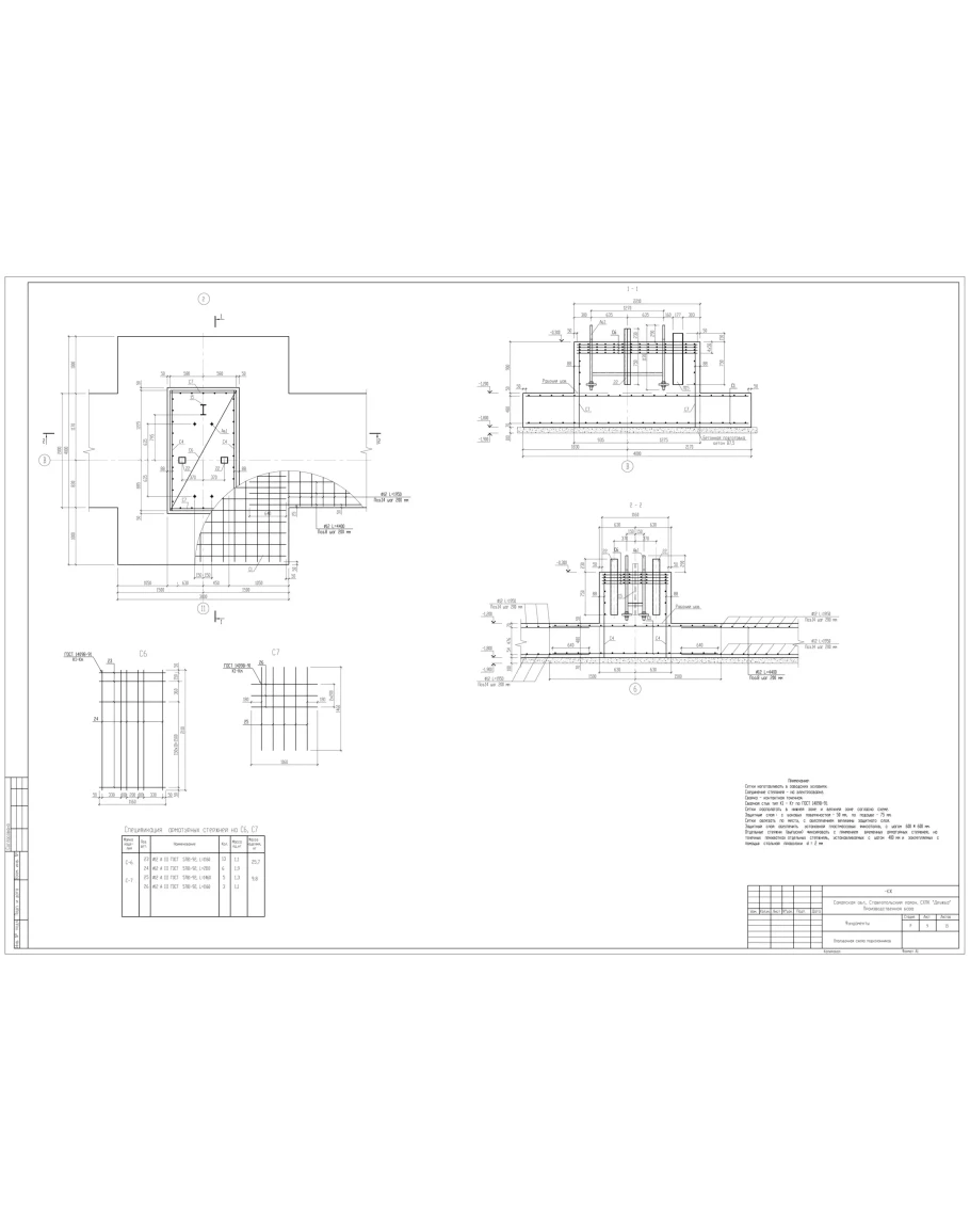
Фундаменты - ленточные, в виде монолитных лент под колонны каркаса.
Основной несущий профиль сварные двутавры с гофрированной стенкой, производитель - ООО"Фирма МетаКом".
Жесткость каркаса обеспечивается жестким сопряжением колонн с фундаментами; жестким сопряжением балок покрытия с колоннами;
системой вертикальных связей и распорок по колоннам, а так же системой связей по балкам покрытия и прогонам покрытия.
Фундаменты - ленточные, в виде монолитных лент под колонны каркаса.






