Проект резервуарной установки СУГ. Рабочий проект предусматривает газоснабжение сжиженным углеводородным газом (СУГ) производственного комплекса, осуществляется прокладка газопровода, установка двух резервуаров и испарителя. СУГ предназначен для отопления производственного цеха.
Рабочий проект выполнен в системе AutoCAD (DWG) и имеет следующие чертежи:
- План расположения резервуарной установки СУГ.
- Прокладка газопровода по фасаду производственного цеха. Виды А, Б.
- Схема аксонометрическая.
- Установка резервуара. План.
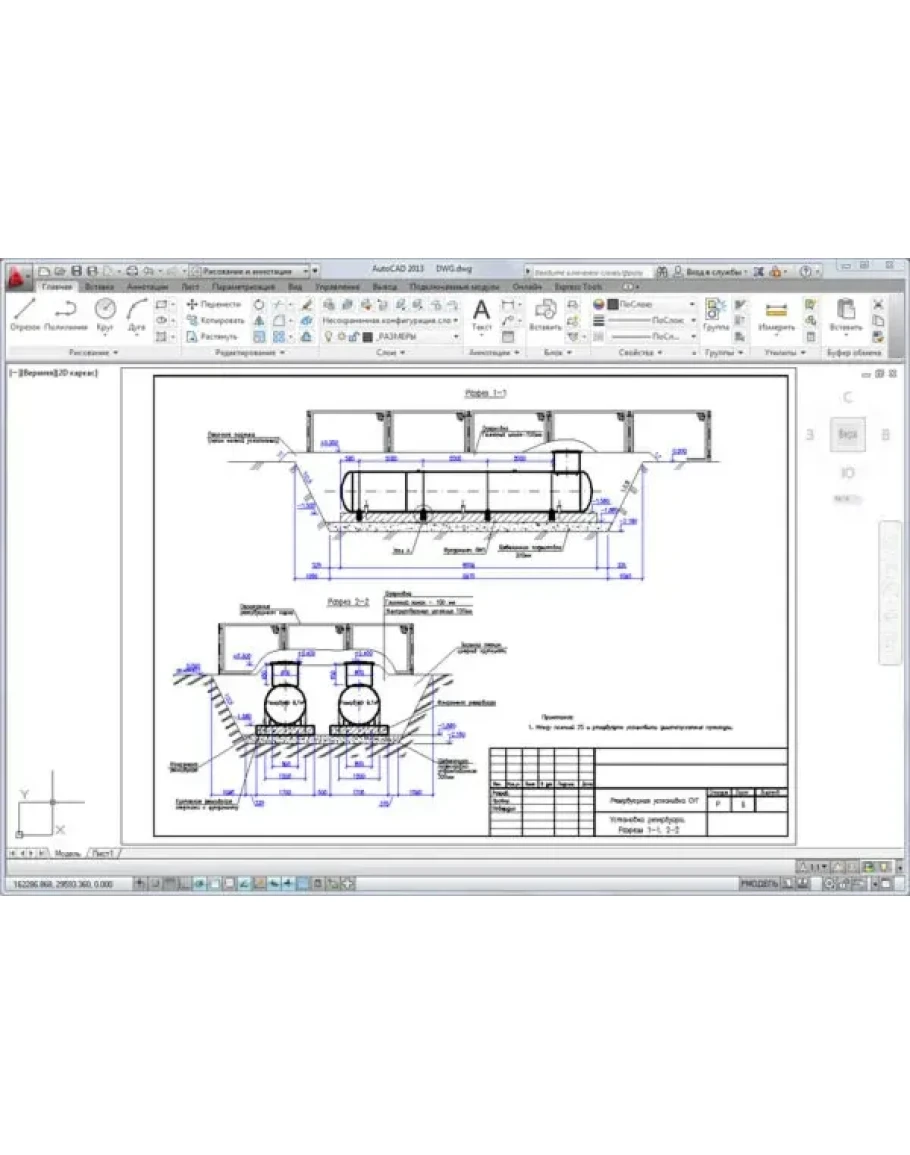
- Установка резервуара. Разрез 1-1, 2-2.
- Расположение газопроводов и оборудования. План.
- Резервуар СУГ 9,1м3. Заводское изготовление.
- Расположения фундаментов и опор. План.
- Ограждение резервуарного парка. План. Вид А.
- Фундамент резервуара. Армирование.
- Фундамент испарителя. Разрезы 1-1, 2-2.
Рабочий проект выполнен в системе AutoCAD (DWG) и имеет следующие чертежи:
- План расположения резервуарной установки СУГ.
- Прокладка газопровода по фасаду производственного цеха. Виды А, Б.
- Схема аксонометрическая.
- Установка резервуара. План.
- Установка резервуара. Разрез 1-1, 2-2.
- Расположение газопроводов и оборудования. План.
- Резервуар СУГ 9,1м3. Заводское изготовление.
- Расположения фундаментов и опор. План.
- Ограждение резервуарного парка. План. Вид А.
- Фундамент резервуара. Армирование.
- Фундамент испарителя. Разрезы 1-1, 2-2.




