Индивидуальный жилой дом
6 листов А2 графической части + 40 листов А4 пояснительной записки
Индивидуальный жилой дом
Лист 1. Особенности конструктивных решений: Фасад 1-4, Фасад Г-А, План первого этажа, План кровли, План перекрытий.
Индивидуальный жилой дом
Лист 2. Особенности конструктивных решений: Разрез 1-1, План Фундамента, План второго этажа, Узел 1, Узел 2.
Индивидуальный жилой дом
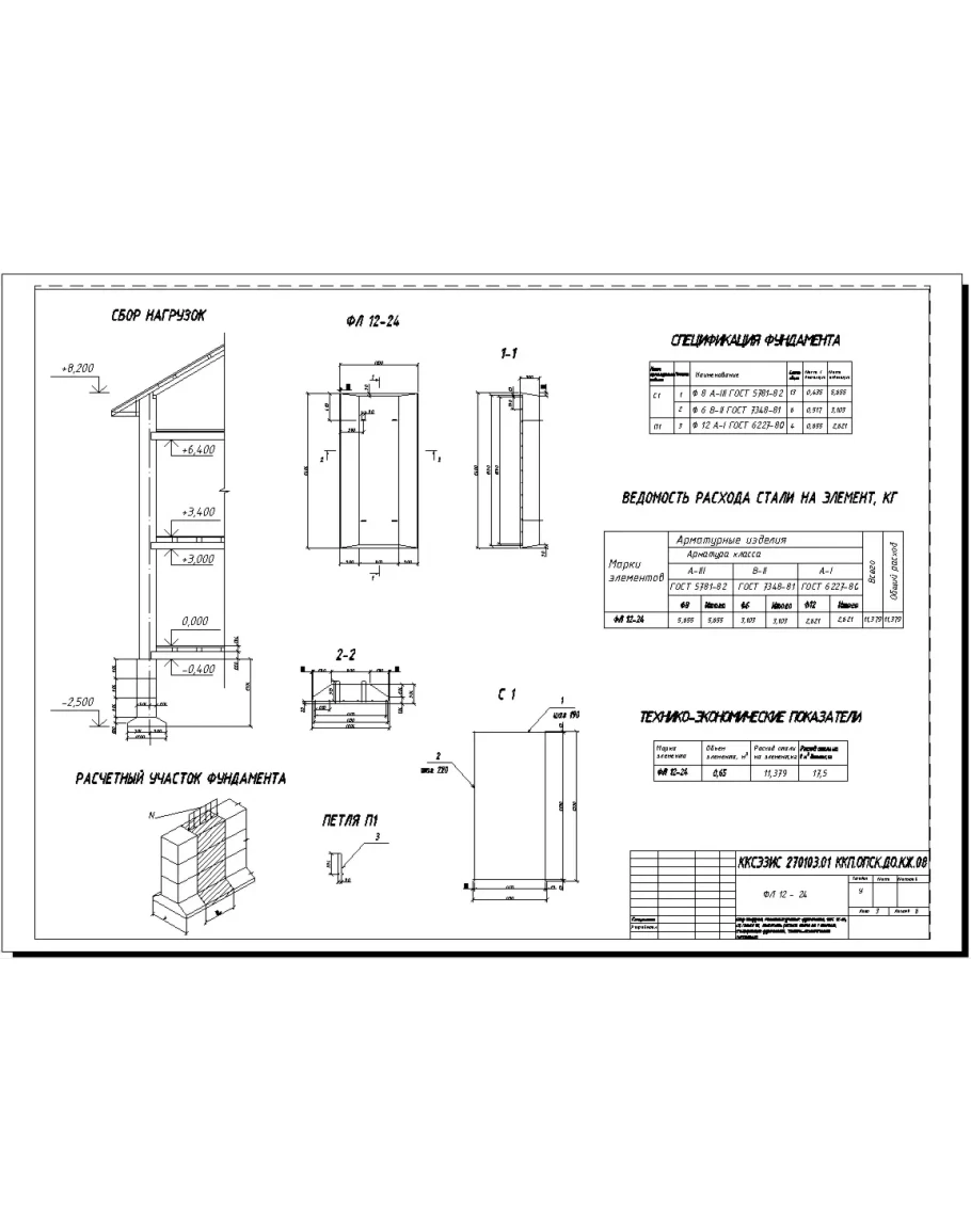
Лист 3. Особенности проектирования строительных конструкций: Сбор нагрузок, ФЛ 12-24, 1-1, Спецификация фундамента, Расчётный участок фундамента, 2-2, С1, Петля П1, ,Ведомость расхода стали на элемен, кг, Технико-экономические показатели.
Индивидуальный жилой дом
Лист 4. Особенности технологии возведения гражданских зданий: Календарный график производства работ с графиком движения рабочей силы, Технико-экономические показатели, Материально-технические ресурсы, Пооперационный контроль качества, Схема допусков и отклонений, Общая схема производства работ, Схема производства операций.
Индивидуальный жилой дом
Лист 5. Особенности технологии возведения гражданских зданий: Указания по производству работ, Указание по технике безопасности, Область применения карты.
Индивидуальный жилой дом
Лист 6. Особенности технологии возведения гражданских зданий: Календарный план производства работ с графиком движения рабочей силы, График движения машин и механизмов, График завоза и расхода строительных материалов, Технико-экономические показатели.
6 листов А2 графической части + 40 листов А4 пояснительной записки
Индивидуальный жилой дом
Лист 1. Особенности конструктивных решений: Фасад 1-4, Фасад Г-А, План первого этажа, План кровли, План перекрытий.
Индивидуальный жилой дом
Лист 2. Особенности конструктивных решений: Разрез 1-1, План Фундамента, План второго этажа, Узел 1, Узел 2.
Индивидуальный жилой дом
Лист 3. Особенности проектирования строительных конструкций: Сбор нагрузок, ФЛ 12-24, 1-1, Спецификация фундамента, Расчётный участок фундамента, 2-2, С1, Петля П1, ,Ведомость расхода стали на элемен, кг, Технико-экономические показатели.
Индивидуальный жилой дом
Лист 4. Особенности технологии возведения гражданских зданий: Календарный график производства работ с графиком движения рабочей силы, Технико-экономические показатели, Материально-технические ресурсы, Пооперационный контроль качества, Схема допусков и отклонений, Общая схема производства работ, Схема производства операций.
Индивидуальный жилой дом
Лист 5. Особенности технологии возведения гражданских зданий: Указания по производству работ, Указание по технике безопасности, Область применения карты.
Индивидуальный жилой дом
Лист 6. Особенности технологии возведения гражданских зданий: Календарный план производства работ с графиком движения рабочей силы, График движения машин и механизмов, График завоза и расхода строительных материалов, Технико-экономические показатели.










