Проект наружного электроосвещения. Подключение предусмотрено от четырех трансформаторных подстанций. Для управления наружным освещением в проекте предусмотрена укладка подземного импульсного кабеля ВРБ-3х4, что позволит управлять освещением от одной головной ТП На головной ТП15 предусмотрена установка элемента управления АСУНО (автоматической системы управлением наружным освещением). Наружное освещение выполнить на железобетонных опорах СЦс-0,8-10 без фундаментов с установкой светильников типа ЖКУ-250 с натриевыми лампами ДнаТ 250.
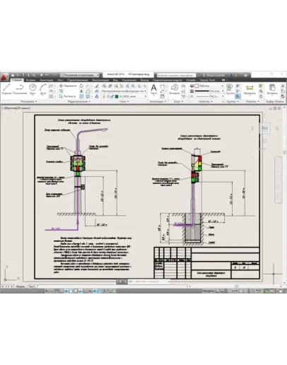
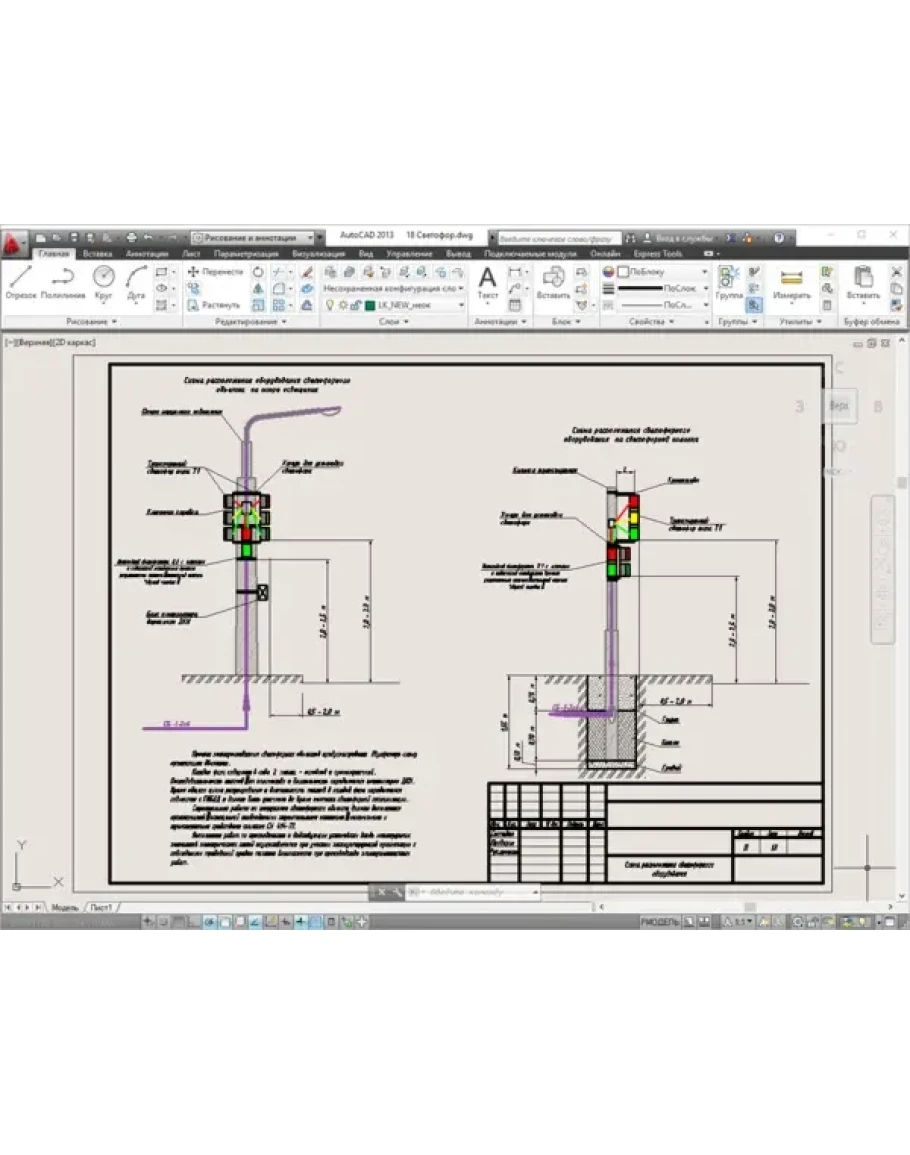
Проектом предусмотрено электроснабжение светофорных объектов.
Формат - DWG, совместимый с AutoCAD 2004-2017, Компас, ZWCAD, nanoCAD, BricsCAD и т.д.
Проектом предусмотрено электроснабжение светофорных объектов.
Формат - DWG, совместимый с AutoCAD 2004-2017, Компас, ZWCAD, nanoCAD, BricsCAD и т.д.




