Рабочий проект установки трансформатора ТМ 100.
В данный комплект рабочей документации входят установочные чертежи трансформаторов собственных нужд ТМ-100/10 У1. Место установки трансформаторов собственных нужд см. план подстанции, комплект рабочих чертежей "Генеральный план".
Установка ТМ разработана на основании типовой работы №13433 тм "Севзапэнергосетьпроект", г. Санкт-Петербург.
Комплект чертежей марки АС на установку трансформатора:
Общие данные.
Схема однолинейная.
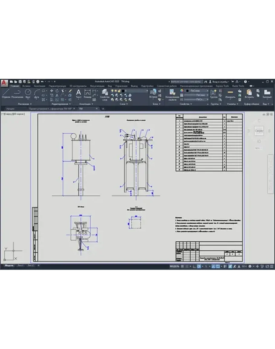
Установка трансформатора ТМ-100/10-У1. План, виды и спецификация.
Марка М-2 (конструкция крепления ТМ к опоре).
Марка М-12 (конструкция крепления ТМ к опоре).
Формат - DWG, совместимый с AutoCAD 2004-2017, Компас, ZWCAD, nanoCAD, BricsCAD и т.д.
В данный комплект рабочей документации входят установочные чертежи трансформаторов собственных нужд ТМ-100/10 У1. Место установки трансформаторов собственных нужд см. план подстанции, комплект рабочих чертежей "Генеральный план".
Установка ТМ разработана на основании типовой работы №13433 тм "Севзапэнергосетьпроект", г. Санкт-Петербург.
Комплект чертежей марки АС на установку трансформатора:
Общие данные.
Схема однолинейная.
Установка трансформатора ТМ-100/10-У1. План, виды и спецификация.
Марка М-2 (конструкция крепления ТМ к опоре).
Марка М-12 (конструкция крепления ТМ к опоре).
Формат - DWG, совместимый с AutoCAD 2004-2017, Компас, ZWCAD, nanoCAD, BricsCAD и т.д.





