Вариант 23.
Университет МГСУ, ПГС - преподаватель Вершинин.
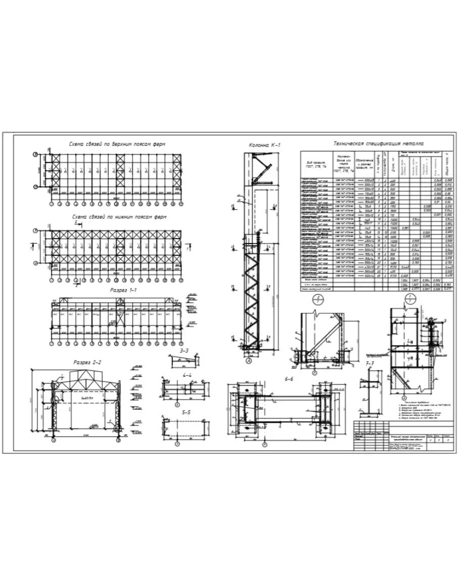
Металлические конструкции, включая сварку - Одноэтажное промышленное здание.
Курсовая работа была сдана данному преподавателю.
Содержание работы:
Компоновка здания
Расчет балки подкрановой
Расчет рамы на нагрузки таблица РСУ
Расчет колонны
Расчет фермы стропильной
Университет МГСУ, ПГС - преподаватель Вершинин.
Металлические конструкции, включая сварку - Одноэтажное промышленное здание.
Курсовая работа была сдана данному преподавателю.
Содержание работы:
Компоновка здания
Расчет балки подкрановой
Расчет рамы на нагрузки таблица РСУ
Расчет колонны
Расчет фермы стропильной





