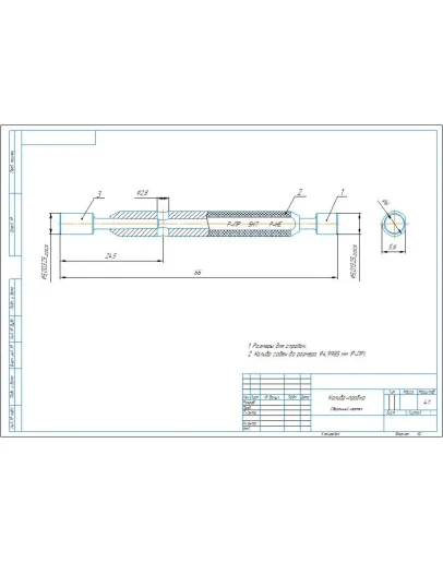
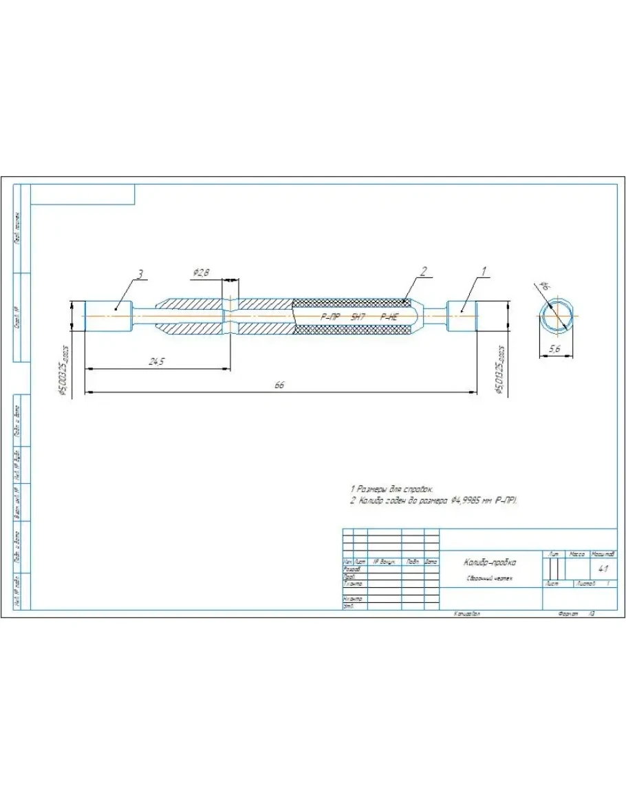
Сборочный чертеж и спецификация калибра-пробки гладкой для контроля отверстия 5H7. Чертеж и спецификация выполнены в компасе
Чертеж калибра-пробки для контроля отверстия 5H7
- Продавец: alexey_ktop
- Модель: 4649292
- Наличие: Есть в наличии
-
130р.





